hyltondaniel
Hylton Daniel design + construction General Contractor Durham
After
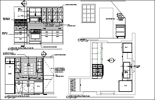
New Kitchen Plan & Elevations
Before